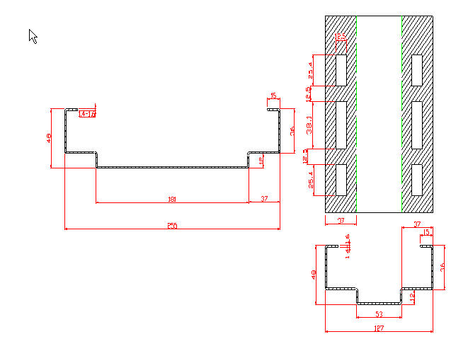
WINDOW PROFILE
— cold roll forming machine
This is a requirement from Pakistan.
Client need window profile to make the window.

Here is the sketch and our machine design with final product.

If you need to inquire cold roll forming machine, don’t forget to provide your profile and material thickness. We will follow your profile to make design, forming machine sketch.